Kompletní výstavba klasických i atypických dřevostaveb

Montované dřevěné rodinné domy

achat2.jpg

ACHÁTkombi P

s pultovou střechou pro vyznavače jednoduchosti a přímočarosti.



Nepřeberné množství variant, tak to nám dodají řady rodinných domů ACHÁT kombi . Tyto řady jsou velmi dobrým příkladem toho, co všechno se dá realizovat. Nalezneme zde vše, co člověk potřebuje. Svým účelným vnitřním uspořádáním tyto řady představují ideální řešení pro každého, kdo touží po vlastní střeše nad hlavou, ale je limitován určitými možnostmi (ať již finančními, nebo dispozičními), , které však nemusejí být překážkou v realizaci útulného a pěkného bydlení. Příznivá cenová relace je u těchto řad dosažena díky velikosti domu, nikoliv však na úkor jejich  kvality či vzhledu. 

Říká se, že v jednoduchosti je krása a to zajisté můžeme s klidným srdcem prohlásit u těchto realizací. Tyto řady jsou velmi dobře navržené domy, které drží jednoduchou a architektonicky čistou linii. Tvář domu se rázem změní např. dřevěným obložením, změnou střešního pláště, barevným řešením fasády vhodně sladěné s barvou oken či jiných prvků. 

  • Příznivá cenová relace
  • Funkčnost, útulnost, praktičnost
  • Jednoduchá a architektonicky čistá linie
  • Poodhalíme Vám velké možnosti malé plochy 
  • Dřevěné obklady, doplňky, zimní zahrady, barvy –podtrhnou Vaši individualitu 

Máte rádi spoustu možností při výběru Vašeho nového bydlení? Tak to vás zaujal ten pravý dům! Dům ACHÁT kombi  nabízí díky svému promyšlenému půdorysnému řešení možnost přizpůsobit se různým přáním všech členů rodiny a to dokonce i v různých fázích rodinného života. Velký otevřený obytný prostor bez zbytečných chodeb a nevyužitelných prostorů – vše je zde přehledné a útulné. Dům je vytvořen přímo na míru těm, kteří si cení pospolitosti stejně jako klidu a odpočinku v soukromí.

Dům ACHÁT kombi  je domem mnoha tváří – je navržen v půdorysném tvaru „L“ a skýtá možnost výběru varianty bungalov
 

Pohled:
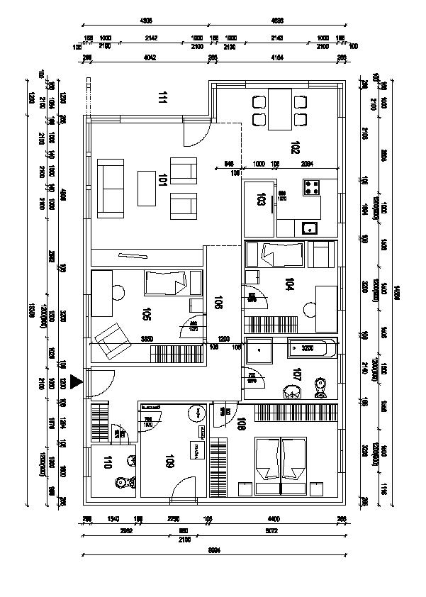
Půdorys:
Galerie:

Naše výroba dřevostaveb v Kojicích

Certifikovaná výroba dřevostaveb

mapa Real Suka dřevostavby